Для чего нужна вентиляционная система?
- Очищение воздуха от различных загрязнений, которые возникают в процессе жизнедеятельности и работы человека.
- Обеспечение оптимального воздухообмена, в результате чего в различных помещениях не остается отработанный воздух, а постоянно происходит его обновление, поэтому дышать будет всегда очень легко и приятно, а это всегда положительно сказывается на самочувствии, настроении и даже здоровье людей.
- Качественные вентиляционные системы обычно обеспечивают нагрев или охлаждение воздуха перед его подачей, поэтому можно не волноваться о том, что в процессе работы оборудования будет слишком жарко или холодно.
Работы по монтажу систем вентиляции являются довольно сложными, поскольку важно первоначально создать специальный проект, в котором будет учитываться множество нюансов самой комнаты и создаваемой системы. В этом случае можно рассчитывать на то, что будет получена такая конструкция, которая будет идеально подходить для определенного помещения, а также будет комфортной для применения
Также важно правильно определиться с тем, какое именно оборудование будет монтироваться. Оно сегодня представлено просто в огромном количестве разных вариантов, обладающих существенными отличиями, а монтаж разных установок может осуществляться различными методами
Советы от специалистов
Естественная вентиляция жилых зданий возможна при правильном расчете площади сечения каналов по отношению к площади комнаты. Главное, обеспечить норму воздухообмена для жилых комнат – 3 куб. метра/час на 1 кв. метр пространства. Но, числовые значения могут изменяться в зависимости от типа самой комнаты и ее размеров. В ванных, туалетах и кухнях минимальный показатель воздухообмена – 45 куб. метров/час.
Вытяжной канал будет функционировать эффективно, только в случае его подходящей длины. Минимальный размер – 60 см. Но, специалисты рекомендуют делать ее достаточно длинной. Главное, чтобы она возвышалась над «коньком» кровли на 50–70 см. А для того чтобы был и хороший приток воздуха, следует избавить перегородки комнат от герметичности. Самый простой способ – приподнять двери. Для обеспечения хорошего проветривания достаточно зазора в 1,5 –2,5 см от дверного полотна до пола.
Приточно-вытяжная вентиляция
Схема работы и устройства приточно-вытяжной вентиляции.
Правила обустройства этой вентиляции позволяют производить монтаж оборудования к потолку либо к стене. Для этого применяют кронштейны. Главное – обеспечить отвод конденсата. Фильтры устанавливают сбоку. Рекомендуется производить монтаж конструкции на стальной каркас либо на бетонное основание. Вытяжные и приточные магистрали монтируют к агрегату и выводят наружу через крышу. Сверху ставят специальный нержавеющий колпак. Воздуховоды можно устанавливать горизонтально на чердаке, вертикально в углу комнаты либо в потолке. Современными конструкциями можно управлять через интернет.
Чтобы установить вентиляцию в доме, потребуется произвести некоторые расчеты (сечение, количество воздуховодов). Для этого применяют таблицу кратности воздухообмена. При этом учитывают количество людей, проживающих в доме. Для вычисления производительности системы данные суммируют. Для обустройства вентиляции применяют полиуретановые, полипропиленовые и прочие трубы. Чтобы оформить повороты, разветвления и стыки, применяют муфты, тройники и прочие элементы.
Если производится установка воздуховода с незначительным сечением, тогда применяют в качестве креплений обычные хомуты. Если этот параметр превышает 30 см, тогда используют планки и шпильки. Для коротких воздуховодов на 1 участок применяют 1 крепление. Для тяжелых конструкций используют крепления, которые устанавливают с шагом в 1,3 см.
Монтаж системы производится с учетом типа устанавливаемой конструкции. Для естественной вентиляции характерно наличие вытяжных клапанов. Их монтируют в кладовой и подсобном помещении, на кухне. Каждый клапан оснащен заслонкой и решеткой, которые позволяют самостоятельно регулировать уровень притока и оттока воздушных масс. Специалисты рекомендуют оптимизировать тягу и эффективную работу вентиляции за счет установки вытяжных элементов ниже потолка (на 20 см). В этом случае производится монтаж вытяжных вентиляторов и приточных агрегатов, которые можно купить в готовом виде. Приток воздуха осуществляется с помощью воздуховодов.
Проектирование
Пример проекта вентиляции дома
Установка вентиляции, как и любой инженерной системы, требует грамотного проектирования.
Осуществляется монтаж в несколько этапов:
- определение объема воздухообмена;
- внесение поправок в соответствии с конструктивными особенностями помещения;
- составление схемы прокладки вентиляционных каналов.
Перед проведением монтажных работ необходимо подобрать нужный размер сечения воздуховодов и рассчитать их длину. На данном этапе также потребуется определить мощность вентиляторов.
Для вытяжного она равняется объему помещения, умноженному на 12. Для приточного – площади комнаты, умноженной на 3.
При проектировании вентиляционной системы с функцией кондиционирования воздуха нужно добавить монтаж дополнительного элемента охлаждения, соединенного с холодильной установкой.
При добавлении в систему отопительных функций в проект нужно внести установку рекуператора – механизма, проводящего одновременно 2 воздушных потока.
Проектирование вытяжной установки начинается с разработки технического задания. В нем указываются все требования по воздухообмену для каждой комнаты.
Основные этапы проектирования:
- Расчет притока воздуха. На основании этого параметра определяются размеры воздуховодов и планируется разводка вентиляционных каналов.
- Выбор способа подачи воздуха: естественный, принудительный, смешанный.
- Определение пропускной способности отдельных элементов системы и потерь внутри них.
- Вычисление звуковых параметров.
- Подготовка чертежей для каждого элемента системы.
С учетом всех требований, отраженных в техническом задании, разрабатывается полная схема вентиляционной системы.
Она должна быть утверждена до проведения работ по отделке помещения, так как в процессе монтажа может потребоваться создание разного рода углублений и отверстий в стенах.
При составлении проекта вентиляционной системы нужно соблюдать все условия по обеспечению удобства и простоты монтажных работ:
- количество узловых элементов должно быть сведено к минимуму;
- процедуры по обслуживанию системы должны быть простыми и понятными рядовому пользователю;
- система должна иметь запасные каналы и узлы, которые послужат альтернативой основным во время ремонта;
- все элементы системы должны гармонично вписываться в интерьер помещения.
Техническое задание
На этапе проектирования вентиляции первым делом нужно составить техническое задание, прописав требования к объемам и функциям воздухообмена в каждой части помещения. В зависимости от назначения комнаты, параметры вытяжной системы могут меняться.
Чтобы успешно и правильно реализовать монтаж, нужно следовать таким принципам:
- Жилые комнаты, спортивные залы или гостиные. Эти помещения нуждаются в бесперебойной подаче свежего воздуха, т. к. в них постоянно находятся люди. Оптимальный объем определяется числом проживающих или присутствующих людей. Также могут предъявляться требования к микроклимату, а именно к температуре и влажности входящих потоков.
- Ванная, прачечная и уборная. Здесь должна присутствовать естественная вентиляция, которая будет выводить отработанный воздух при работе механических систем.
- Кухня. Эта часть помещения считается технической и характеризуется постоянным повышением влажности. К тому же на кухне скапливаются запахи газа и продуктов питания, поэтому их нужно быстро и эффективно выводить наружу. Для таких целей используется многофункциональная принудительная вытяжка.
- Коридор и прихожая. Задача вытяжки в такой части дома заключается в свободном перемещении воздушных масс и сбалансированном воздухообмене.
- Кладовка. Помещение оснащается естественной вытяжкой.
- Бойлерная или топочная. Эти комнаты требуют регулярного выведения продуктов горения посредством естественной вентиляции, то есть через трубу.
Также автономные вентиляционные системы должны присутствовать в рабочих помещениях, таких как гараж и мастерская. Мощность и рабочие параметры оборудования определяются площадью и назначением комнаты.
Предпроектные предложения (ПП)
На стадии предпроектных предложений составляется исходно-разрешительная документация и разрабатываются соответствующие документы, которые проходят согласование в различных инстанциях.Разработка документацииРазработка документации на стадии предпроектных предложений включает в себя следующие позиции:
- общая пояснительная записка (содержит краткую характеристику состояния объекта, основные технико-экономические показатели и результаты расчетов экономической эффективности проектных решений, данные об объемах строительных и монтажных работ и др.);
- расчет нагрузок (определение тепловых нагрузок и основных нагрузок объекта для присоединения к сетям);
- принципиальные схемы инженерных систем (принципиальные решения по инженерному обеспечению – оборудованию системами вентиляции, кондиционирования, отопления, диспетчеризации, автоматизации и управлению инженерными системами);
- технологические решения (чертежи, планы, спецификация оборудования и материалов с привязкой и др.);
- инженерные системы и оборудование (обследование возможностей монтажа инженерных систем и оборудования на стадии строительства объекта, изменение качества инженерно-технического обеспечения при реконструкции объекта, замена сетей инженерно-технического обеспечения при капитальном ремонте объекта).
![]() |
Нормативные требования
Начнем с изучения действующих нормативных документов. Актуальные СНиП на вентиляцию жилых зданий — 2.04.05-91 «Отопление, вентиляция и кондиционирование» и 2.08.01-89 «Жилые здания».
Для удобства читателя сведем ключевые требования документов воедино.
Температура
Для жилой комнаты она определяется температурой наиболее холодной пятидневки в году.
- При ее значении выше -31С в комнатах необходимо поддерживать как минимум +18С.
- При температуре самой холодной пятидневки ниже -31С требования несколько выше: в комнатах должно быть не менее +20С.
Для угловых комнат, имеющих как минимум две общих стены с улицей, нормы на 2 градуса выше — +20 и +22С соответственно.

Последствия промерзания.
Для санузлов минимальное значение температуры составляет +18С, для ванных и душевых — +24.
Нормы воздухообмена
Каковы нормы вентиляции жилых помещений (точнее, скорость воздухообмена в них)?
| Помещение | Минимальный воздухообмен |
| Жилая комната | 3 м3/час на 1 м2 площади |
| Кухня | 60 м3/час для электроплит и 90 м3/час для газовых плит |
| Ванная, туалетная комната | 25 м3/час |
| Совмещенный санузел | 50 м3/час |
Дополнительные требования
Какие еще требования и рекомендации можно найти в СНиП на отопление и вентиляцию жилых зданий?
Схема вентиляции может предусматривать воздухообмен между отдельными помещениями. Проще говоря, можно организовать вытяжку в кухне, а приток воздуха — в спальне. Собственно, документ конкретизирует рекомендацию: вытяжную вентиляцию следует предусматривать в кухнях, санузлах, ванных, туалетах и сушильных шкафах.

В сталинках можно увидеть две вентиляционных решетки в помещении кухни. Одна из них открывается в дымоход: дома строились под печное отопление.
- Вентиляция квартиры должна присоединяться к общему вентканалу не ниже чем в 2 метрах от уровня потолка. Инструкция призвана минимизировать вероятность опрокидывания тяги в ветреную погоду.
- При использовании отдельных помещений в жилом доме для общественных нужд они снабжаются собственной системой вентиляции, не связанной с общедомовой.
- При температуре самой холодной пятидневки ниже -40С для трехэтажных и более высоких зданий допускается оборудование приточной вентиляции системами подогрева.
- Газовые котлы и колонки со сбросом продуктов сгорания в общую вентиляцию допускается устанавливать лишь в зданиях не выше пяти этажей. Твердотопливные котлы и водонагреватели и вовсе могут быть установлены лишь в одно- и двухэтажных зданиях.
- Приточный воздух рекомендуется подавать в помещения с постоянным пребыванием людей. Что, собственно, опять-таки приводит нас к уже упомянутой схеме: приток воздуха через жилые комнаты и вытяжка через кухню и санузел.
Что включает проект
пример проекта вентиляции частного дома
Расчет вентиляции предусматривает определение того, хватит ли производительности систем для забора воздуха извне и пропускной возможности естественных воздуховодов для обеспечения пространства требуемыми по нормативу объемами свежего воздуха.
Проект должен составляться квалифицированными специалистами, так как для этого нужны специфические знания и навыки. Для определения интенсивности перетоков воздушных масс требуется не только расчет сечения воздуховодов, но и учет периметра у воздуховода.
Этапы проектирования
Формула расчета необходимого воздухообмена
Первым этапом расчета системы вентиляции помещения является определение необходимых объемов поступающего воздуха. На данном этапе необходимо знать, для приточной системы следует в дальнейшем закупать оборудование или же для монтажа вытяжки. Также требуется составить схему конвекции воздуха в помещениях.
На втором этапе проектирования вентиляции нужно определить диаметры воздуховодов с обоснованием, сможет ли требуемый расход воздуха пройти сквозь совокупное сечение патрубков.
И наконец, следует определить необходимую мощность вентиляции, от которой и зависит интенсивность замены воздушных масс в помещениях. Этот показатель как раз и характеризуется коэффициентом кратности.
Расчет естественной вентиляции

Естественный конвекционный воздухообмен в доме происходит из-за наличия в помещениях обогревательных элементов, из-за чего холодный воздух, нагреваясь, поднимается к потолку, заставляя более холодный (остывший) воздух ниспадать к полу. Там он снова нагревается, и цикл повторяется.
Если в комнате открыть окно, то более теплый верхний слой воздуха выйдет в атмосферу, а его место займет более холодный уличный. Таков обычный механизм проветривания. Кроме того, воздух циркулирует и между помещениями дома, перетекая в комнаты с большей интенсивностью конвекции.
Дома, в которых предусмотрена конвекционная система вентиляции, обязательно должны быть оснащены шахтами естественной вытяжки (согласно нормативу – минимум 1 шахта на 72 м2 общей площади квартиры или одного этажа дома, кроме санузлов).
Рассчитать вентиляцию в данном случае означает правильно определить размеры межкомнатных отдушин или даже площади щелей под дверями, через которые будет циркулировать воздух по дому/квартире.
Грамотно рассчитанная система естественной конвекции никогда не приведет к появлению сквозняков в доме, а в комнатах всегда будет свежий воздух и нормальная влажность. Добиться этого можно только при помощи высококвалифицированных специалистов-разработчиков и использовании специальных программ.
Расчет вытяжной и приточной вентиляции
Главным отличием приточной вентиляции от вытяжной является неспособность первой качественно проветрить помещение, удалив из него, к примеру, остатки ядовитых газов. Расчет вентиляции, в которой воздух принудительно только подается в помещение, а наружу он выходит уже в пассивном режиме, например, через капитальную вентиляционную шахту, строится на определении объемов воздуха, которым требуется снабдить все помещения дома или квартиры.
Для этого нужно учесть количество человек, которые пользуются каждой комнатой, а также площадь самих помещений.
Вытяжная вентиляция удаляет использованный воздух из помещений. Методика расчета такой системы подразумевает определение объемов и интенсивности межкомнатных перетоков воздуха, то есть расчет совокупного сечения отдушин и щелей, чтобы воздушные массы, которые затягиваются в помещение извне, перед тем, как попадут в вытяжной вентилятор, смогли бы сначала обновить атмосферу во всех комнатах.
И наконец, расчет приточно-вытяжной вентиляции. Как рассчитать систему вентиляции, обеспечивающую и искусственное нагнетание воздуха, и искусственное отведение? В сущности, это и не нужно.
Главное, чтобы объем поступающего во все комнаты воздуха был равен объему выводимого. А это легко сбалансировать подбором мощности и производительности вентиляторов. И если площадь сечения воздуховодов будет одинаковой, то проект можно считать исполненным.
Однако здесь возникают проблемы изменения этой самой производительности вентиляторов. Со временем все агрегаты, которые работают непрерывно, изнашиваются. Во всех вращающихся узлах, к примеру, выходят из строя подшипники.
Поэтому именно при монтаже приточно-вытяжной вентиляции крайне важно использовать высококачественное нагнетающее оборудование и обеспечить его сервисным обслуживанием. Только так можно сохранить баланс притока свежего и отведения отработанного воздуха
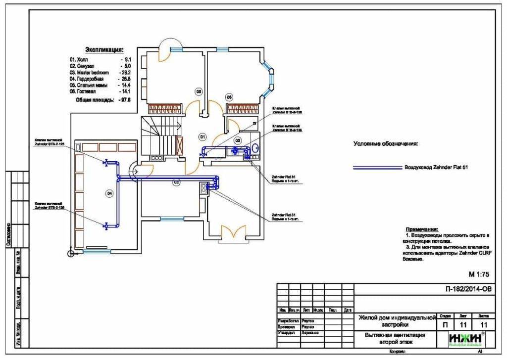
Особенности проектной документации
Проектную документацию можно разделить на три части:
- пояснительную записку;
- комплект чертежей;
- дополнительные сведения.
В пояснительной записке содержится краткая характеристика вентиляции, ТЗ на обустройство вентиляционных трасс, мощность и расход тепла, значение воздухообмена в разрезе помещений.
В жилых помещениях устанавливают, как правило, приточно-вытяжную систему. Так называемая ветка с вентиляционными агрегатами включает отдельные вентиляторы, вентиляционные узлы, автоматику для управления калорифером, обратные клапаны
В комплект чертежей входит распределительная схема вентоборудования с детализацией узлов и структурной схемой, чертежи узлов, планы размещения трасс, воздуховодов. Включает эта часть проекта также правила обслуживания коммуникаций и дополнительные сведения для установки вентиляционной системы.
Полный пакет проектной документации невозможен без дополнительных сведений – сертификатов, лицензий, интеграционных таблиц, аксонометрических схем и спецификаций оборудования.
Состав проектной документации
Система вентилирования является частью архитектурно-строительного проекта — это обязательный подраздел общей документации, который содержит:
- Титульный лист. Название проекта, заказчика и подрядчика, фамилии подписантов.
- Техническое задание. Подробное описание пожеланий заказчика, с описанием технологии производства, оборудования.
- Графическая часть. Набор чертежей, включающих: аксонометрические схемы, общие планы вентиляции, отдельные узлы, деталировки оборудования, зонирование. Их можно нарисовать от руки или с помощью чертёжной программы.
- Пояснительная записка. Текстовый документ, включающий расчёт суммарной мощности вентиляторов, кратность воздухообмена, описание автоматических систем управления.
- Спецификации на оборудование.
- Лист согласование технической/графической части с архитектором и дизайнером.
Дополнительно выполняется несколько расчётов, которые не входят в пояснительную часть. Например, теплопотери через ограждающие конструкции, аэродинамический расчёт.
За профессиональной помощью в решении проблем вентилирования надо обращаться только к компаниям, которые входят в состав СРО (саморегулируемые организации). Там осуществляется контроль над деятельностью участников.
Правила монтажа
подъем участка воздуховодов круглого сечения
Требования к монтажу вентиляционных систем изложены в СНиП 3.05.01-85:
- Установка системы осуществляется в соответствии с утвержденным проектом;
- При установке воздуховодов продольные швы располагают вверх;
- Все болтовые крепления труб затягиваются как можно сильнее;
- Воздуховоды к механизмам крепят только после монтажа;
- При размещении воздуховода следует учитывать: его масса не должна передаваться механизмам;
- При креплении вентиляторов и воздуховодов используются виброизолирующие материалы;
- Радиальные вентиляторы устанавливаются на жесткие подпоры и крепятся анкерными болтами;
- Электромоторы прикрепляются к вентиляторам после тщательной подгонки;
- Фильтрующая поверхность должна быть равномерна, без провисаний и складок;
- Крыльчатка вентилятора должна вращаться свободно;
- Входы в систему прикрываются вентиляционными решетками с размером ячеи не более 7х7 см;
- При монтаже вентиляционной системы желательно минимизировать количество поворотов, переходов и изгибов, создающих сопротивление.
Правила монтажа вентиляционных систем обязательны к исполнению и гарантируют стабильную работу оборудования в будущем.
Особенности монтажа вентиляции на действующем объекте
При работе с действующими зданиями важно на начальной стадии определиться с габаритами вентиляционных установок, чтобы сразу оценить масштабы работ
Проектирование
Пример проекта вентиляции дома
Установка вентиляции, как и любой инженерной системы, требует грамотного проектирования.
Осуществляется монтаж в несколько этапов:
- определение объема воздухообмена;
- внесение поправок в соответствии с конструктивными особенностями помещения;
- составление схемы прокладки вентиляционных каналов.
Перед проведением монтажных работ необходимо подобрать нужный размер сечения воздуховодов и рассчитать их длину. На данном этапе также потребуется определить мощность вентиляторов.
Для вытяжного она равняется объему помещения, умноженному на 12. Для приточного – площади комнаты, умноженной на 3.
При проектировании вентиляционной системы с функцией кондиционирования воздуха нужно добавить монтаж дополнительного элемента охлаждения, соединенного с холодильной установкой.
При добавлении в систему отопительных функций в проект нужно внести установку рекуператора – механизма, проводящего одновременно 2 воздушных потока.
Проектирование вытяжной установки начинается с разработки технического задания. В нем указываются все требования по воздухообмену для каждой комнаты.
Основные этапы проектирования:
- Расчет притока воздуха. На основании этого параметра определяются размеры воздуховодов и планируется разводка вентиляционных каналов.
- Выбор способа подачи воздуха: естественный, принудительный, смешанный.
- Определение пропускной способности отдельных элементов системы и потерь внутри них.
- Вычисление звуковых параметров.
- Подготовка чертежей для каждого элемента системы.
С учетом всех требований, отраженных в техническом задании, разрабатывается полная схема вентиляционной системы.
Она должна быть утверждена до проведения работ по отделке помещения, так как в процессе монтажа может потребоваться создание разного рода углублений и отверстий в стенах.
При составлении проекта вентиляционной системы нужно соблюдать все условия по обеспечению удобства и простоты монтажных работ:
- количество узловых элементов должно быть сведено к минимуму;
- процедуры по обслуживанию системы должны быть простыми и понятными рядовому пользователю;
- система должна иметь запасные каналы и узлы, которые послужат альтернативой основным во время ремонта;
- все элементы системы должны гармонично вписываться в интерьер помещения.
Этапы проведения проектирования
Составление плана необходимых работ проводится в два последовательных этапа, включающих подготовку всех необходимых расчетов, сметы, технических заданий для специалистов смежных областей и выбор подходящего модельного ряда оборудования.
Этап #1 — подготовка расчетов и заданий
Подготовка заключается в ознакомлении со зданием, его местоположением, строительными особенностями и прочими факторами.
Специалистами составляется технико-экономическое обоснование, на основе которого приблизительно подбирается тип системы кондиционирования. Последняя описывается упрощенно.
На упрощенной схеме показаны ключевые звенья системы кондиционирования, блоки распределения хладагента и основные блоки управления климатическим оборудованием
Мастер предлагает потенциально эффективное оборудование, которое соответствует потребностям помещения по базовым характеристикам:
- мощности;
- холодо-, тепло- и воздухопроизводительности.
После этого составляется смета будущих работ. Если проект по ТЭО удовлетворяет владельца здания или квартиры, подготовительный этап переходит в рабочую фазу.
Этап #2 — подбор подходящего оборудования
На этом этапе проектирование основывается на точных расчетах, учитывающих внутреннюю и внешнюю теплонагрузку, теплотехнические характеристики объекта. Расчеты проводятся индивидуально для каждого помещения, после чего точно известны избытки тепла в каждой зоне. На основе этих данных подбирается необходимое для компенсации тепловых нагрузок оборудование.
После выбора техники начинается проектирование мест установки кондиционеров, предоставляется схема разводки воздуховодов, подготавливается план технических работ для монтажной бригады, электриков.
Все подготовленные материалы передаются заказчику и поставщику климатического оборудования. После монтажа желательно провести пусконаладочные работы, которые помогут настроить функционирование оборудования.
1 Система вентиляции
Выбор системы зависит от назначения и особенностей строения. На конструкцию и способ ее прокладки влияют параметры окружающей среды и финансовые возможности собственника. Типы вентсистем:
- 1. Приточно-вытяжная система относится к популярным вариантам. Подходит для стандартного жилища и производственных площадей. Предусматривает несколько степеней фильтрации, препятствующих попаданию внутрь запахов и пылевых потоков с улицы.
- 2. Приточная вентиляция обеспечивает вывод использованного и приток свежего воздуха естественным способом. Предназначена для жилых комнат.
- 3. Вытяжная конструкция содержит в составе мощные вентиляторы, сила которых выбирается в зависимости от типа помещения и его размеров. Устанавливаются в ванной, на кухне, в подвалах, предбанниках саун и бань. Эффективно очищает воздух во влажных и теплых комнатах дома.

Чтобы сбалансировать внутренний микроклимат, применяют дополнительные устройства и приборы. Комбинированная система обеспечивает эффективное замещение воздуха. Концепция предполагает:
- 1. Объединение кондиционирования и вентиляции. Одновременно выводит загрязненные потоки, пропускает свежий воздух и понижает его температуру. В конструкцию входит установка охлаждающего оборудования.
- 2. Совмещение отопления и вентиляции. В системе применяется рекуператор, пропускающий два противоположных потока. Новый воздух нагревается с помощью специального генератора.
Варианты конструктивных решений
Вентиляция в ресторане — сложная инженерная система. Если помещение большое, нужно разделить площадь заведения на зоны с отдельными вытяжными и приточными каналами. Объединить в единую конструкцию допускается только небольшие кафе и бары. В этом случае приток оборудуется в зале, а вытяжка в зоне приготовления.
Вентиляция зала

В стандартном варианте вентиляция кафе имеет приточно-вытяжную систему, работающую за счёт естественного и принудительного движения воздушных масс. В помещении для посетителей внизу устанавливаются приточные клапаны с вентиляторами, через которые свежий воздух попадает внутрь гостевого зала, а сверху, где скапливается тёплый отработанный воздух — вытяжные. При этом объём подачи делают чуть больше, чем удаления — это создаёт избыток, который не позволяет воздуху с кухни попасть в зал.
Чтобы температура воздуха была под контролем, устанавливают кондиционер. В этом случае пропускная способность системы точно регулируется исходя из количества посадочных мест. Приток комбинируют с канальным кондиционером, сплит-системой, чиллером.
Аналогичным образом вентилируются санузлы, склады, подсобки, гардеробные, но через отдельные каналы.
В гостевой зоне можно оборудовать воздушную завесу, чтобы вентилировать отдельно зал для курящих и не причинять неудобства для других посетителей. Особенно эффективно размещение локальных вытяжных систем над столиками для курящих или оборудование специальных комнат. В зоне для курения должна преобладать вытяжка, а не приток, тогда запах дыма не будет проникать в другие помещения.
Воздухообмен на кухне

Наиболее сложная система вентилирования необходима для кухонь. Она состоит из двух частей: общеобменной и локальной. Это позволяет создать комфортные и безопасные условия работы для персонала заведения.
Общеобменная вентиляция кухни кафе или ресторана обеспечивает приток свежего воздуха. Предназначена для снижения температуры и замены отработанного газа. Как правило, состоит только из приточных клапанов.
Локальная вентиляция горячего цеха монтируется непосредственно над варочными поверхностями, печами, духовками. Она представляет собой принудительные вытяжные системы в виде зонтов с жироуловителями и без них. Эти устройства удаляют из помещения запахи, газы, жир, пар и горячий воздух. Выполняются в различных вариантах: потолочные, пристенные, островные.
По санитарно-гигиеническим нормам воздухообмен горячего цеха нужно оборудовать отдельно от зала именно из-за содержания в воздухе частиц жира, пара и отработанных газов. Так как, в противном случае, всё это может попасть в помещение для гостей.
Чтобы зонт эффективно функционировал, нужно:
- Тщательно выбирать размер оборудования, чтобы улавливающая поверхность должна быть больше по ширине, чем плита или стол.
- Приобретать оборудование с небольшим запасом производительности.
- Монтировать зонт на определённой высоте (значение указано в руководстве по эксплуатации).
- Не эксплуатировать оборудование без жироулавливающих фильтров, если таковые предусмотрены конструкцией.
Вентиляция для кафе на кухне должна быть эффективной и безопасной. Это необходимо для комфорта гостей и создания нормальных условий труда для персонала. Экономия на этой статье расходов может обернуться множеством проблем: запахом в зале, повышением температуры, духотой, спёртостью воздуха.
Естественная вентиляция с выводом на чердак
Гравитационная, она же естественная вентиляция обеспечивает циркуляцию воздуха по знакомому со школы принципу: теплый воздух легче холодного. Теплый воздух поднимается по воздуховодам для вытяжки, расположенным максимально высоко. Более холодный воздух из приточных воздуховодов поступает в дом.
Вентиляционные воздуховоды в одно- и двухэтажном частном доме можно объединить в одну систему только при наличии хорошей системы вентиляции на самом чердаке. Это сокращает количество воздуховодов на крыше
Если на чердаке и в кровельном пироге грамотно устроена эффективная подкровельная вентиляция, то системы отвода отработанного воздуха можно полностью или частично объединить.
Циркуляцию и отвод загрязненной воздушной массы в пределах чердака обеспечит действие:
- фановых стояков;
- аэраторов (воздуховод с выходом на улицу, принудительно обеспечивающий постоянную циркуляцию воздуха на чердаке);
- грамотного устройства кровельного пирога (самый простой — это вентиляция при помощи 2-ух зазоров под кровлей и над стропилами);
- кровельных вентилей, врезающихся непосредственно в кровельную систему.
Если в пределах неотапливаемого чердака организована естественная система вентиляции, рациональным решением является объединение всех вентиляционных труб на чердаке для вывода через общую вентиляционную шахту.
Один вентиляционный стояк может решить проблемы с конденсатом на чердаке. Естественная система вентиляции замыкается на него
При достаточной вентиляции чердака конденсат на нем не скапливается. К сожалению, далеко не всегда кровельные вентили или чердачные зазоры обеспечивают ее полной мере.
Вентиляция холодного треугольника неотапливаемой двухскатной крыши (именуют его фронтоном или щипцом) осуществляется путем устройства вентиляционных окон или отверстий с выходом на улицу. Это гарантирует достаточную циркуляцию воздуха на чердаке
Слуховые и вентиляционные чердачные окна, которые можно закрывать и открывать, должны обеспечить большую циркуляцию воздуха, чем другие способы естественной вентиляции чердака. К примеру, пробуренные в фронтонах приточные и вытяжные отверстия.





































