Составление чертежа (размеры и разметка)
Составление схемы будущего шкафа включает следующие этапы:
- Вначале необходимо определить параметры будущего шкафа – длину, высоту и глубину. Для этого понадобится лазерная или обычная рулетка.
- Углы на балконе и высота от пола до потолка, при измерении в разных местах, не всегда одинаковы. Определять такие нюансы необходимо перед установкой мебели, чтобы в дальнейшем их скорректировать.
- Чтобы использовать место под мебель с максимальной пользой, шкаф монтируют до упора в потолок, закрепив на брусках.
- Если планируется шкаф с большой глубиной, следует учесть, чтобы конструкция не загораживала окно. Это смотрится не эстетично и возникнет преграда для поступления света.
- Используя размеры, рекомендуется начертить схему. Планировка и составление чертежа – неразделимые вещи в процессе изготовления деталей, сборке и установки мебели.
- Начертить разметку на потолке. Отметить расположение балки. Затем при помощи отвеса, внизу нарисовать такую же. На стенах очертить линии, которые соединят балки. Получится замкнутый прямоугольник – он послужит основанием для каркаса.
- Чтобы наверняка не ошибиться с размерами и правильной подготовкой элементов, конструируется макет из картона. Это отнимет еще какое-то время, но вырезая по нему нужные части, будет меньше отходов материала.
Чтобы иметь понятие о составлении чертежа, ниже представлены варианты некоторых моделей с рекомендуемыми размерами:
- Шкаф, не предполагающий навес дверей. При желании, изготавливаются двери-купе или распашные.
- Шкаф для широкого балкона (желательно утепленного и отапливаемого). Такую модель с большими полками и вешалкой используют для хранения одежды.
- Модель для маленького балкона.
- Модель для хранения одежды.
Предложенные эскизы являются стандартом. Их можно дополнять любыми элементами, менять размеры и создавать нужный дизайн.
При сборке мебели, может возникнуть потребность в подгонке частей. Особенно, когда поверхность места установки имеет погрешности.
Делаем встроенный шкаф на балконе пошагово
Создание мебели проводят в несколько этапов:
- Подготовка инструментов и материалов.
- Замер помещения и составление чертежа.
- Монтаж каркаса.
- Установка полок.
- Установка дверей.
Подготовка инструментов и материалов

Для проведения замеров, подготовки чертежей и сборки встроенного шкафа на балкон своими руками потребуется стандартный набор мебельщика. В него входят такие инструменты:
- уровень и измерительные принадлежности;
- карандаш или маркер;
- лобзик;
- циркулярная пила;
- ножовка;
- дрель;
- ножницы для работы с металлическими листами;
- шуруповерт;
- бумага для нанесения схемы и размеров;
- молоток.
Замер помещения и составление чертежа
Перед составлением схемы и подсчетом количества необходимых материалов проводят замер балкона и определяют высоту, глубину и ширину шкафа. Получив основные параметры, приступают к составлению чертежа.

На схему наносят элементы каркаса и указывают расстояние между ними. Встроенный шкаф проектируют от стены до стены, без зазоров у стен. Затем внутренние секции разбивают на полки и определяют интервал.
Опытные мебельщики легко справляются с нанесением размеров на бумагу. Для новичков будет проще воспользоваться готовыми стандартными чертежами и адаптировать их под свои параметры балкона.
Монтаж каркаса

Чтобы собрать встроенный шкаф на балкон своими руками, необходимо сделать каркас.
После определения размеров шкафа отметки переносят на потолок и стены помещения. Брусок или металлопрофиль прикладывают к стене и делают несколько сквозных отверстий, чтобы наметить место. Затем дрелью высверливают отверстия, вставляют дюбели и фиксируют брусок шурупом.
Поперечные элементы каркаса крепят по подготовленной схеме. Они будут играть роль основания для полок. Для соединения деревянных частей используют металлические уголки, а части металлопрофиля фиксируют саморезами по металлу.
Установка полок

Чтобы в шкафу было удобно хранить вещи, необходимо установить полочки. Для этого из листа инженерной древесины вырезают прямоугольные детали по намеченным размерам. Заготовки прикручивают к перекладинам саморезами.
Можно предусмотреть разборную конструкцию полок. Для этого вырезают детали по ширине секции и просто кладут на поперечные балки каркаса. Такой метод полезен, если в шкафу будут хранить крупногабаритные вещи.
Установка дверей

Чтобы шкаф плотно закрывался и свободно открывался, необходимо точно подобрать размеры открывающей системы. При этом в расчет принимают и дверные петли. Дверь вырезают из полотна инженерной древесины.
Обратите внимание! Если для облицовки используют пластик или ГКЛ, то сначала собирают каркас двери. Затем на основание крепят вагонку или облицовывают ГКЛ.
Чтобы поставить двери на каркас, используют дверные петли-бабочки
Для этого стамеской вырезают участок, по размерам соответствующий толщине и ширине соединительного элемента, прикручивают петли саморезами
Чтобы поставить двери на каркас, используют дверные петли-бабочки. Для этого стамеской вырезают участок, по размерам соответствующий толщине и ширине соединительного элемента, прикручивают петли саморезами.
Для полноценного использования шкафа устанавливают фурнитуру. На противоположной стороне двери делают сквозные отверстия и прикручивают ручку. Конструкцию проверяют на плавность открытия и, если замечают недочеты, исправляют их.

Финальный этап пошагового руководства по изготовлению встроенного шкафа на балкон своими руками – внешняя отделка. Чтобы мебель выглядела привлекательно, древесину покрывают лакокрасочными материалами. Они не только улучшат внешний вид, но и защитят дерево от влаги, насекомых и солнечного света. На время покраски на балконе открывают окна для обеспечения хорошей вентиляции.
Этапы создания полноценного шкафчика
Этап первый. Эскиз
Изготовление любого предмета мебели должно начинаться с чертежа. Нет, не стоит пугаться, для этого не нужно быть чертежником-профессионалом. Достаточно на листе бумаги изобразить изделие, которое хочется получить в результате. При этом не обязательно делать свой проект. Можно выбрать эскиз в сети интернет. Подобрать подходящий вариант, а после подкорректировать с учетом своих предпочтений.
Имея представление о том, как должен выглядеть шкаф, который получится в результате работы, следует определиться с размерами. Тут пригодится рулетка. С ее помощью необходимо произвести натурные замеры с перенесением полученных результатов на бумагу. После того, как эскиз обрастет размерами, легко определиться с количеством необходимого материала и крепежа.
Этап второй. Изготовление каркаса
Следующим шагом будет сборка каркаса из деревянных реек. Начинать необходимо с изготовления верхней и нижней части.
ЧИТАТЬ ДАЛЕЕ: Как сделать погреб на балконе и лоджии
С помощью ручной пилы отрезают рейки должных размеров, соединяют в точном соответствии с чертежами
Важно следить за тем, чтобы верхняя и нижняя части были одинаковы
Существует множество вариантов соединения реек, но в домашних условиях оптимальным будет использование специальных уголков и саморезов. Подобное соединение будет прочным, надежным и не столь сложным в исполнении как, к примеру, соединение паз-шип.
Справившись с изготовлением каркасов дна и потолка шкафа, можно приступать к соединению их вертикальными рейками. Сборку необходимо производить на ровной площадке, желательно с помощником. Особый упор в проведении данной процедуры стоит делать на строгую параллельность и перпендикулярность соединений.
Тут же, на этапе сборки каркаса, к рейкам основы необходимо прикрепить направляющие выдвижных ящиков для хранения всевозможных мелочей (если таковые предусмотрены) и поперечины для полочек.
Этап третий. Облицовка
Как только каркас будет собран, можно приступать к его обшивке. В случае, если для задних стенок выбрана фанера из листа, острым инструментом (дисковой электропилой, электролобзиком или просто острой ножовкой) вырезаются прямоугольные плиты нужных размеров. Крепление производится с помощью саморезов.
Работа с вагонкой также не должна вызвать особых проблем, особенно если на этапе сборки каркаса точно выдержаны размеры. В этом случае длина используемой доски будет одинакова для каждой стенки и дверей.
Этап четвертый. Двери
Пожалуй, важнейшей деталью шкафа на балконе являются двери
Их изготовлению стоит уделить особое внимание. Следует заметить, что вариантов дверей для шкафа несколько
Они могут быть раздвижными, распахивающимися, имеющими различную высоту створок, тут все зависит от пожеланий и от выбранного чертежа.
ЧИТАТЬ ДАЛЕЕ: Шкаф для балкона и лоджии своими руками
Простейшим вариантом является полотно из вагонки, которое изнутри укреплено брусками. Два бруска устанавливают горизонтально, третий между ними, под углом с таким расчетом, чтобы его края упирались в параллельные бруски. Подобная конструкция обеспечит максимальную жесткость и не потребует значительных затрат труда.
Имея некоторые навыки работы с древесиной, можно сделать дверь в виде прямоугольной рамы, внутри которой будет собран рисунок из вагонки. Подобное изделие получит оригинальный вид, но работа будет трудоемкой. Перед тем как сделать дверь со сложной структурой, необходимо изобразить ее на бумаге, это облегчит сборку.
Схемы шкафов
Чертежи шкафов, не зависимо от того, какой они будут формы, размера и где будут устанавливаться, играют очень важную роль. Они будут являться основой, на которую можно будет опираться при изготовлении всех составляющих шкафа.
Не взирая, на особенности, для всех чертежей важно соблюдение чётких размеров. Длина, ширина и высота внешних частей и размеры внутренней составляющей, перенесённые на бумагу должны чётко соблюдаться при изготовлении шкафов
Изделие не получиться таким, каким его задумали, если размеры хотя бы одной детали будут нарушены
Это приведёт к деформации всей конструкции и получению некачественного результата
Изделие не получиться таким, каким его задумали, если размеры хотя бы одной детали будут нарушены. Это приведёт к деформации всей конструкции и получению некачественного результата.
Шкаф своими руками
ПВХ-панели в интерьере комнаты. Встроенная мебель с распашным открыванием створок. Самостоятельный монтаж экономит семейный бюджет, но отнимает личное время в процессе ремонта.

Каркас из листов гипсокартона. Для отделки стен балкона использованы плиты МДФ. Конструкция отличается простым монтажом и незначительным весом, для создания не нужны большие затраты. Главный недостаток – материал подвержен влиянию влаги и механическим деформациям.

Для фасадов и отделки стен помещения использовали МДФ. Монтаж осуществлялся своими руками.

Мебель из материала ЛДСП с раздвижными дверьми. Раздвижная система Raumplus.

Мебель с открытыми полками
Современный дизайн. Конструкции стеллажей сделаны из деревянных элементов. Открытые ниши можно заполнять декором или использовать для хранения других предметов.

Гардеробная на лоджии (материал ЛДСП). Мебель состоит из комбинации открытых полок и тумбы для обуви.
Изготовление дверей
Рекомендуем делать распашные двери, работа не отнимает много времени и можно сделать любой дизайнерский вариант.
Шаг 1. Снимите размеры и нарисуйте эскиз. Понадобятся две одинаковые двери, хотя размеры можно менять по своему усмотрению.
Шаг 2. Отрежьте нужное количество вагонки по размерам, пользуйтесь шаблоном. Проверьте отрезанные куски по высоте. Для этого поставьте их на ровной поверхности, если есть разница по высоте, то исправьте ошибки.
Распил вагонки
Шаг 3. Для каждой дверки следует заготовить по два горизонтальных бруска одинаковой длины и по одному бруску для диагонали. Каркас будет иметь вид буквы Z, такая конфигурация обеспечивает прочность соединения, дверка не будет нарушать геометрическую форму во время боковых нагрузок.
Как сделать дверь из вагонки на шкаф
Шаг 4. Проверьте длину горизонтальных брусков, они не могут выступать за периметр дверки
Положите их на ровную поверхность, осторожно сверху сложите подготовленные заготовки вагонки. Еще раз проверьте размеры и углы, если все нормально, то можно начинать крепление
Шаг 5. Вначале зафиксируйте крайние доски. Если во время работы конструкция немного сдвинулась, выставьте ее в правильное положение. После этого можно закреплять все остальные отрезки вагонки.
Шаг 7. Примерьте диагональный брусок, карандашом отметьте места запилов. Как можно плотнее подгоните ее к горизонтальным элементам. Все нормально – прикручивайте каждую вагонку к диагональному бруску. Вторую дверку нужно делать идентично первой.
Варианты рисунков при отделке дверей вагонкой
Шаг 8. Отрежьте по размерам доски для полок, установите их на место. Прикручивать нет надобности, главное чтобы они лежали плотно друг к другу.
Теперь можно приступать к лакировке тумбочки. Операция несложная, но имеет свои секреты.
Пошаговая инструкция по сборке и установке шкафа на балкон
Самостоятельная сборка и установка мебели для хранения не составит большого труда, если пользоваться схемами и действовать поэтапно, а также иметь желание и немного терпения. Рассмотрим простой вариант из дерева.
Шаг 1: изготовление каркаса
| 1 | Согласно составленной схеме, подготавливаются элементы для основы конструкции – каркаса. Он изготавливается из доски, бруса или профиля. Распил дерева производится электролобзиком. Металлопластиковый профиль разрезают ножницами по металлу. |
| 2 | Далее, по разметке закрепляются элементы каркаса на полу и потолке. Получившиеся прямоугольники нужно соединить стояками, выставленными вертикально по уровню. Затем прикрепить стояки саморезами к стене, с шагом крепления 30-40 см. |
| 3 | По отмеченным линиям закрепить горизонтальные перекладины. Они нужны для установки полок, а также для жесткости конструкции. |
| 4 | Горизонтальные брусы соединить с вертикальными стояками уголками из металла с помощью саморезов. Уголки лучше устанавливать снизу бруса, чтобы их не было видно. |
| 5 | В случае, если нет длинной цельной доски для установки вертикально, допустимо соединение двух коротких отрезков способом наложения. Тогда нижние и верхние детали каркаса устанавливают одновременно. При сборных брусах, конструкция прикрепляется к стене. |
Шаг 2: установка полок
| Следующим шагом следует установка и закрепление полок. Они изготавливаются из досок, которые укладывают рядом на перекладины заподлицо, или из фанеры толщиной не менее 10 мм. Прикручиваются саморезами. |
Шаг 3: изготовление и крепеж дверей
| 1 | Перед изготовлением дверей, нужно узнать их размер по проему с учетом петель. Если в планах поставить две дверцы, то их можно высчитать сразу, и подогнать после примерки на месте. |
| 2 | Собрать двери можно из досок, прикрепленных к раме или же вставить в нее. Предварительно нужно подготовить основу: на несущих брусках фрезером сделать пазы, а на досках вырезать шипы. Для обшивки лучше использовать вагонку. |
| 3 | Для дверной основы применяется обшивка из вагонки или пластиковых панелей. Если балконное помещение отделано тем же материалом, то шкаф впишется идеально. Основа для дверей делается из брусков толщиной не менее 12 мм. |
| 4 | Части основы для дверей крепятся между собой в углах шипами и пазлами. Для жесткости устанавливают средники. |
| 5 | Створки крепятся на петли, которые нужно углубить в месте крепежа на размер толщины пластины. |
| 6 | Еще один вариант крепежа – петли для мебели, но для них нужны круглые выемки в раме. |
| 7 | Последний этап – разметка и установка ручек. Прикручивают винтами, идущими в комплекте. |
| 8 | Стенки и полки, рекомендуется крепить к основе мебельными уголками с помощью саморезов. |
В основном, построение шкафа из пиломатериала заказывают специалистам. Но гораздо дешевле сделать самостоятельно.
Мнение эксперта
Дмитрий Лаптев
Плотник с 20 летним стажем.
Шкаф с жалюзийными дверями выглядит красиво и элегантно. Такой декор дверей позволяет постоянно проветривать шкаф внутри. Шифоньеры бывают с распашными, складными и раздвижными створками. Чтобы самому сделать шкаф с жалюзийными дверями, следуйте нашему руководству. Для этого можно использовать готовые дверки, которые есть в продаже, или заказать у мастера.
Материалы для балконного шкафа
Даже на утепленном балконе главной угрозой мебели остается влажность. Поэтому и материал для его создания подбирают с оглядкой на этот фактор. Возможны такие варианты:

- Дерево — лучший материал для любой мебели, так как он эстетичен, прост в обработке, имеет отличные эксплуатационные характеристики при правильной обработке материала и корректном уходе за ним. Противопоказание — холодные балконы, на которых высока влажность. Нередко для этой цели используют деревянную вагонку.
- ДСП (ЛДСП). Ахиллесова пята этого материала — не очень хорошая устойчивость к влаге и перепадам температур, поэтому такая мебель будет чувствовать себя неплохо только на застекленных балконах и лоджиях. ЛДСП подойдет для отапливаемых помещений.
- МДФ. Этот качественный материал по своим свойствам больше приближен к натуральному дереву, однако выгодно отличается от него ценой. Эти панели не страшатся ни влажности, ни перепадов температур. Не последний плюс — их экологичность.
- Пластик — панели ПВХ. Самый непритязательный кандидат из этого списка, так как он совсем не боится влаги, практичен, дешев, ухаживать за ним очень легко. Недостатки пластика — хрупкость, постепенное изменение цвета при долгом нахождении под солнечными лучами.
- ГКЛ. Еще один претендент — влагостойкий гипсокартон, однако этот материал не лучший из «соискателей». Причина тому его хрупкость. Другие минусы — большой расход профиля для изготовления более-менее надежной конструкции, дверцы, которые в любом случае придется делать из другого материала.
- Металлопластик. Этот материал известен своей практичностью. Ему не страшны ни жара, ни холод. Повышенная влажность и механические воздействия тоже не слишком большая угроза. Самый большой враг союза металла и пластика — яркое солнце, рано или поздно вызывающее его пожелтение. Отдельные элементы для шкафа (дверцы, полки) покупают в строительных магазинах.

Чтобы сделать шкаф на балконе своими руками, можно выбрать не один, а несколько материалов. Комбинации из них дают возможность создания необычной, оригинальной мебели.
Каркас

На эту роль чаще выбирают брус, его размеры — 40х40 или 50х50 мм. Этот вариант традиционный, однако если балкон не отапливается, древесина не лучший выбор, ее размеры будут изменяться «благодаря» перепадам влажности, температур. Регулярная обработка защитными пропитками тоже будет необходима.
Оптимальным выбором для балконных условий становится металлический профиль, имеющий оцинкованное покрытие. Он не боится на влаги, ни перепадов температур, к тому же любой отделочный материал прикрепить к металлу достаточно легко. Альтернатива — направляющие с отверстиями для кронштейнов, на них крепят полки. Плюс — легкая смена расстояний между ними.
Полки

Эти элементы легче всего изготовить из листового материала. Возможно использование толстой фанеры, ДСП или ЛДСП, ОСП, но полки для тяжелых вещей требуют «помощи» дерева. Эти элементы нередко делают из обрезков досок, оставшихся в хозяйстве. Пропитки и лакокрасочный материал для обработки покупают тот, что предназначается для наружных работ. Он защитит элементы от ультрафиолета. Обезопасить квартиру от «чудных ароматов» сможет лак, имеющий водную основу.
Полки просто укладывают на брус, либо фиксируют на каркасе саморезами. Еще один вариант крепления — к стене балкона уголками, однако данная работа усложнится и затянется, если стены потребуют сажать весь набор полок на дюбеля. Выход из затруднительного положения — сборка каркаса и фиксация элементов к нему или направляющие с кронштейнами.
Дверцы

Есть 3 варианта дверей, которые обычно используют при изготовлении шкафа для балконов или лоджий. Это:
- обычные — распашные;
- раздвижные — типа купе;
- рольставни.
Первые самостоятельно установить легче всего, потребуются только дверцы, мебельные петли и шуруповерт. Раздвижные конструкции позволяют сэкономить пространство, если рядом планируется установка барной стойки или какой-либо мебели, однако для них нужен набор, состоящий из направляющих и системы роликов для дверного полотна. Новомодные рольставни — удовольствие дорогое, но в этом случае в стоимость обычно входит и установка этих устройств.

Если говорить о материалах, которые удобны для самостоятельного изготовления полотен, то первое место в состоянии разделить деревянные доски и вагонка. Эти элементы собирают на деревянном каркасе. Дверцы из ЛДСП — достаточная причина, чтобы заказать полотно в мастерской, так как разрезать лист без сколов в состоянии только циркулярная пила. Качественное ламинирование торцов в домашних условиях — миссия, которая практически невыполнима.
Материалы
Балконные шкафы изготавливаются из натурального дерева, фанеры, пластика или ДСП. Возможна также комбинация обоих вариантов. Для поверхности обычно используются сетчатые или ПВХ панели. Если балкон не утеплен, лучшим выбором будет натуральное дерево, которое можно сочетать с устойчивыми к атмосферным воздействиям облицовочными панелями. Покрашенная водостойкой краской или наружным лаком, или обработанная другим подходящим способом, древесина выдержит перепады температур и атмосферные осадки.


Если ваш балкон хорошо утеплен и защищен от влаги, вы можете использовать любой материал, так как он не сможет ему навредить.





Как разметить детали шкафа под засверловку
Если правильно разметить и засверлить все детали на угловой шкаф своими руками, то в итоге он соберется очень просто, как конструктор. Удобней всего это делать в специальных мебельных программах, например, Базис Мебельщике.
Принципы простые:
- Мебель собирается на евровинты (конфирматы).
- Детали засверливаются в торец и с лицевой стороны.
- Расстояние от края детали лицевой стороны должно быть одинаковым. Например, 50 мм. Или по центру.
После того, как крепеж расставлен, нумеруем детали. Если есть детали одинакового размера, но с разным принципом крепления, используем дополнительную маркировку (а, б, и т.д.).
В Базис Мебельщике можно получить спецификации на засверловку в таком виде.
Но тут надо быть внимательным, четко представлять, где у детали углового шкафа своими руками «лицо», а где «изнанка», по закатанным кромкой сторонам. Программа этого нюанса не видит, расставляет крепеж слева направо. И в процессе засверловки могут попасться детали, которые нужно будет отзеркалить. В принципе, это не сложно. Все равно со спецификациями засверловки весь процесс пройдет гораздо быстрее.
Основные виды конструкций
Прежде чем приступить к строительству гардероба для балкона, сначала нужно определиться с конструкцией. В этом случае существует два варианта шкафа-купе — прямой, самый вместительный, и квадратный, подходящий для небольших балконов.
Также важна конструкция двери, которая может иметь различную конфигурацию: Распашные, раздвижные или складные двери и рольставни.
Распашные двери — важный вариант, обеспечивающий максимальное удобство использования и эстетичность. Единственным недостатком является временная невозможность прохода, возникающая при открывании распашных дверей.

Рольставни — один из самых экономичных вариантов, сочетающий низкую стоимость с высокой функциональностью. В чем-то они похожи на жалюзи: их можно поднимать вертикально, и они не занимают места при открытом шкафе.
Раздвижные двери работают по тому же принципу, что и рольставни, но выглядят более эстетично. Двери скользят по направляющим и не занимают лишнего пространства. Полуоткрытые, они занимают отверстие и поэтому не могут вмещать крупные предметы.
Складная дверь выглядит как дверь-ширма. Это вариант экономии пространства, который открывает комнату почти полностью. Однако дверь не является надежным вариантом, поскольку плохое закрывание может позволить влаге проникнуть внутрь шкафа.
Высота и глубина зависят от размера предметов для хранения. Например, для лыж необходимо вертикальное отделение, а для зимней одежды достаточно специальной вешалки.
В балконном шкафу часто устанавливают распашную дверь, так как это самый простой и дешевый вариант. Однако при планировании дизайна следует учитывать, что открытые двери требуют много места.
Если дверное полотно слишком тяжелое, его следует разделить на несколько частей. Таким образом, дверные петли не перегружаются, а мебель становится более удобной в использовании. Кстати, шкаф-купе поможет вам решить проблему нехватки места.
Необходимые для работы материалы
Когда вы остановитесь на одном из вышеперечисленных вариантов, настанет время выбрать материалы. Учитывая тепловой режим на балконе, вам необходим прочный материал, устойчивый к перепадам влажности.
Поэтому есть еще несколько вариантов, которые лучше всего подойдут для ваших нужд:
- Дерево — отлично поддается обработке, долговечно и эстетично. Однако из-за высокой цены этот материал доступен не всем.
- ДСП — более дешевый вариант, имитирующий поверхность дерева. С помощью покрытия ДСП им можно придать любую текстуру и цвет.
- Панели МДФ — это простой в использовании и недорогой материал. Единственный его недостаток — низкая прочность.
- Гипсокартон — это экономичный и практичный выбор. Однако из-за своей легкости гипсокартон не выдерживает больших нагрузок.
Помимо качественных параметров продукта, следует обратить внимание и на его внешний вид. Другими словами, стиль балкона должен быть выдержан
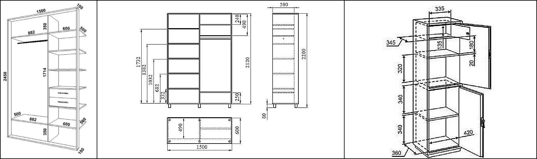
Составление чертежа (размеры и разметка)
Составление схемы будущего шкафа включает следующие этапы:
- Вначале необходимо определить параметры будущего шкафа – длину, высоту и глубину. Для этого понадобится лазерная или обычная рулетка.
- Углы на балконе и высота от пола до потолка, при измерении в разных местах, не всегда одинаковы. Определять такие нюансы необходимо перед установкой мебели, чтобы в дальнейшем их скорректировать.
- Чтобы использовать место под мебель с максимальной пользой, шкаф монтируют до упора в потолок, закрепив на брусках.
- Если планируется шкаф с большой глубиной, следует учесть, чтобы конструкция не загораживала окно. Это смотрится не эстетично и возникнет преграда для поступления света.
- Используя размеры, рекомендуется начертить схему. Планировка и составление чертежа – неразделимые вещи в процессе изготовления деталей, сборке и установки мебели.
- Начертить разметку на потолке. Отметить расположение балки. Затем при помощи отвеса, внизу нарисовать такую же. На стенах очертить линии, которые соединят балки. Получится замкнутый прямоугольник – он послужит основанием для каркаса.
- Чтобы наверняка не ошибиться с размерами и правильной подготовкой элементов, конструируется макет из картона. Это отнимет еще какое-то время, но вырезая по нему нужные части, будет меньше отходов материала.
Чтобы иметь понятие о составлении чертежа, ниже представлены варианты некоторых моделей с рекомендуемыми размерами:
- Шкаф, не предполагающий навес дверей. При желании, изготавливаются двери-купе или распашные.
- Шкаф для широкого балкона (желательно утепленного и отапливаемого). Такую модель с большими полками и вешалкой используют для хранения одежды.
- Модель для маленького балкона.
- Модель для хранения одежды.
Предложенные эскизы являются стандартом. Их можно дополнять любыми элементами, менять размеры и создавать нужный дизайн.
При сборке мебели, может возникнуть потребность в подгонке частей. Особенно, когда поверхность места установки имеет погрешности.




































