Общие сведения
Данная постройка, не смотря на общий функционал, имеет различия в форме и способе возведения. Что касается формы, то ее вы определите сами для себя, какая вам больше всего нравится, а вот количество требуемых материалов будет зависеть от чертежа.
Варианты дачного туалета
Чаще всего на загородном участке применяют следующие варианты дачного туалета:
- Туалет с выгребной ямой;
- Пудр-клозет;
- Биотуалет.
У каждого вида сооружения есть свои преимущества и особенности возведения. Прежде чем начать строительство, ознакомьтесь с нюансами строительства каждого из них, и выберите подходящий вариант.
Конструкция дачного туалета с выгребной ямой
Возведенные кирпичные стены покрывают штукатуркой. Сам туалет может быть создан из любого материала, чаще всего используют древесину. Форма может быть произвольной, к примеру, самые востребованные конструкции напоминают шалаш, маленький домик или теремок.
Такой проект предусматривает скопление отходов в выгребной яме под дачный туалет, для очищения которой необходимо применять ассенизатор. Одним их главных недостатков таких конструкций является довольно таки неприятный запах в помещении туалета, который никуда не девается, и понятное дело, находится в нем неприятно. Исправить ситуацию может, разве что, система вентиляции в дачном туалете. Перед вами встанет выбор между принудительной и естественной системой. Последний вариант предусматривает создание отверстий вверху и внизу. Их главная задача – в создании круговорота воздушных потоков, которые не позволят неприятному запаху задерживаться в туалете.
Принудительная вытяжка в дачном туалете предусматривает наличие вентилятора, который будет выдувать амбре из помещения туалета. Устанавливая вентилятор, вы должны предусмотреть возможность обустройства компенсационного отверстия, благодаря которому воздух будет попадать вовнутрь. Диаметр дырки должен быть на уровне диаметра самого вентилятора. Все эти нюансы должны быть прописаны в проекте дачного туалета.
Важно! При установке дачного туалета не упускайте необходимости со здания циркуляции воздуха в выгребной яме. Для этой цели сгодится вентиляционная труба
Конструкция пудр-клозета
Основная функция такого шланга – выведение жидкости в грунт или систему дренажа. Вместилище для наполнителя играет в данном проекте основную роль. Часто используемой смесью является торф, который помогает удержать неприятный запах, который при данной конструкции неизбежен. После наполнения резервуара отходами, его выносят на компостную яму.
При создании чертежа дачного туалета такого плана, предусмотрите возможность удобного выноса емкостей. Для этого можно создать конструкцию, при которой резервуар можно будет извлечь после поднятия сидения дачного туалета. Второй вариант решения задачи предусматривает создание маленькой дверцы, которая позволит без проблем достать резервуар с отходами.
Конструкция биотуалета
Это самый простой и выгодный в плане трудозатрат вариант дачного туалета. Вам не придется ничего строить, копать, сооружать, подводить. Просто купите готовую будку биотуалета и установите ее в выбранном месте. На выбор есть готовые дачные туалеты обычной конструкции и просто кабинки.
Дачный туалет с душем
Такие проекты довольно популярны, поскольку являют собой универсальную конструкцию, а также могут стать достаточно выгодным сооружением с экономической точки зрения. Также, таким образом, вы сможете сэкономить драгоценное пространство на дачном участке. Проект дачного душа и туалета под одной крышей предусматривает наличие общей стены. Кроме того, туалет можно создавать на основе выгребной ямы либо резервуара со смесью. Выгодность такой постройки в том, что после тяжелого трудового дня на огороде, вы сможете спокойно принять душ на месте.
Понятное дело, что такие конструкции требуют большего капиталовложения, нежели туалеты простого типа, но результат в любом случае вас порадует. Применяя на практике готовые чертежи, вы получаете возможность создать дачный туалет своими руками без привлечения дополнительной рабочей силы. Экспериментируя, можно добавить конструкции изюминки и получить не только комфортную конструкцию для личного пользования, но и привлекательную внешне.
Выбираем дизайн
И пусть ваш туалет будет самой простой постройкой, его надо красиво оформить. Тем более, что сегодня найти чертёж и подобрать дизайн по вкусу не проблема. И будет очень оригинально и эффектно, когда на дачном участке туалет будет иметь форму избушки или сказочного домика.
Здесь, главное, включить свою фантазию! Например, есть несколько прекрасных вариантов, соорудив которые, не стыдно будет показать их гостям либо соседям.
- Форма «Шалаш». Такая постройка не нуждается в больших тратах. В результате «шалаш» получается прочным, ему не страшен ветер и природные осадки. Из недостатков отмечаем тесноту внутри, а также потребуется на участке выделить много места.
- «Скворечник». Места на участке займёт минимум, также средств на постройку уйдёт мало. Построить сможет и новичок, настолько несложные работы при возведении. Минусы: продувается ветром, не держит зимой температуру, саму конструкцию надёжной назвать нельзя. Но, на сегодня это один из самых популярных видов построек на дачных участках.
- «Домик». Для постройки не понадобится много стройматериала и земли под строение. Похож «домик» на «скворечник», только его можно утеплить и сделать более прочным. Для украшения обычно используют как покупные декоративные элементы, так и сделанные своими руками.
- «Избушка». У этой постройки оригинальный и эффектный вид. По устойчивости, надёжности и защищённости «избушка» превосходит остальные конструкции.
По форме крыши различают: односкатные и двускатные. К односкатным принадлежит «скворечник». К двускатным крышам принадлежат остальные перечисленные постройки. И сегодня они приобретают всё большую популярность.
Когда выбран вариант постройки, то определиться надо с размерами. Обычно глубина туалета составляет 1,5 метра. Для «скворечника» и «избушки» ширину рекомендуют 120 см, для «шалаша» примерно 150 см.
Также надо учитывать, что у всех видов туалетов общий недочёт – не закрывающаяся дверь. Поэтому, если нужна надёжная, защищённая от порывов ветра постройка, то на двери навешивают потайные либо амбарные петли.
Тип «Избушка»
Рассмотрим, как можно сделать своими руками такой туалет на даче.
Возведение подобной конструкции состоит из нескольких этапов:
- Строительство и укрепление стенок выгребной ямы.
- Возведение стен туалета.
- Обшивка и утепление.
- Установка крыши и кровля её профнастилом.
- Монтаж двери и необходимой фурнитуры.
Понадобится для работы:
- шесть метров деревянного бруса 10×10 см;
- 16 м брусков 5×5 см;
- для обшивки нужны 4 листа ориентированно-стружечной плиты (OSB) не меньше 9 мм;
- дюймовые доски 40 м, шириной 18 см;
- доски для пола, толщина 3 см;
- кровельный материал с волокнистым наполнителем, 3 листа;
- и по мелочам: гвозди, сиденье на унитаз, куски бруса на обрешётку, саморезы, пропитка для древесины.
Для работы нужно: ножовка, рулетка, молоток, строительный уровень, шуруповёрт, электролобзик, рулетка.
Виды дачный туалетов по форме
Дачный туалет необязательно должен быть квадратной формы. Он может выполняться треугольным, ромбовидным, прямоугольным.

После выбора формы, важно подобрать качественный материал для отделки туалета

Скворечник
Самым распространенным вариантом дачного туалета является форма квадрата. Часто ее еще именуют «скворечник». Крыша у строения всегда односкатная:
- Стандартно под строение применяют доски в 40 мм. Сооружение выходит недорогое. Двери туалета надевают на петли верху или внизу.
- Петли могут быть наружного типа. Если они наружные и внушительные, то дверь будет походить на амбарную. Это достаточно уместно для грубого дачного дизайна.
- Конечно, туалетное помещение имеет одну функцию. Но туалет возможно сделать и немного привлекательнее, если добавить резного орнамента.
- Неплохо будет смотреться постройка по типу ветряной мельницы.

Шалаш
Подобный «шалаш» имеет вид треугольника. Его боковые стенки являются скатом кровли. Подобную конструкцию можно сделать за несколько часов.

Для туалета по типу «шалаш» его обшивка моделируется исключительно спереди и сзади.

Бока треугольника моделируются досками.


Избушка, домик
На постройку туалета по типу ромба уходит значительно больше времени:
- Снаружи каркас оббивают распиленными бревнами и толстой вагонкой.
- Когда применяют доску для облицовки, то накладывается она встык на несколько сантиметров на нижнее бревно по подобию еловой шишки.
- Не рекомендуется делать нахлест встык, потому что это будет не красиво.




Купить биотуалет или сделать самому
Чтобы разобраться со всеми достоинствами и недостатками готового туалета нужно вспомнить его структуру. Биотуалеты изготавливают из толстой пластмассы. Летом в таком помещении будет не комфортно и жарко. Вредные испарения также не желательны для организма. А в зимний период такая структура будет пропускать холод и просто станет не безопасно для здоровья.
При низкой температуре можно простудиться, что повлечет за собой кучу заболеваний. Единственно выгодным считается приобретение биотуалета на временные нужды, пока проходит сооружение местного туалета.
Наряду с этим, домашняя будка считается более надежной и безопасной для человека. Если делать выводы, то для дачных поселений лучше самостоятельно изготовить обычный туалет, который как показывает практика простоит не одно десятилетие.
Перед стройкой огородного санузла следует выбрать удобное место. Для благоприятной обстановки подразумевается та часть дачного огорода, где можно спокойно уединиться. Двери будущего санузла не должны выходить в зону отдыха детей и близких. Комфортное и тихое, даже немного отдаленное местечко идеально подойдет для такой конструкции. Также можно рассчитать более закрытое пространство, куда не будет задувать ветер.
Классификация по типу утилизации отходов
Утилизация продуктов жизнедеятельности человеческого организма в дачных туалетах осуществляется неодинаково. Под такие цели выполняют ямы разного формата:
- выгребная яма;
- лофт-клозет;
- пудр-клозет;
- биотуалет.

На основе выгребной ямы
С тех пор, как начали вырастать города, люди стали облагораживать «отхожие места» под типу туалетов с выгребной ямой. Такой вариант не потерял актуальности.

Яма туалетах перекрывается деревянными досками. В сельской местности обращение с такими туалетами простое.

Старая яма засыпается, новая вырывается в отдаленном месте. Вырывать яму лучше всего вручную лопатой. Таким образом можно добиться ровных краев. Лучше не делать ее глубже трех метров.

Без выгребной ямы
Когда на участке сложно найти подходящее место, нужно делать туалет без выгребной ямы. Этот тип туалета относят к изолированным туалетам.

Бывают следующие его разновидности: люфт-клозет, пудр-клозет, биотуалет.

Люфт-клозет
Под лофт-клозет понимают кабинку с унитазом без водяной заглушки. Контакт продуктов жизнедеятельности с окружающей почвой отсутствует.

Подобный тип туалета даже дает возможность обустраивать туалетную зону внутри помещения
Важно при сооружении позаботиться о вентиляционной системе

Пудр-клозет
Пудр — клозет вовсе не подразумевает наличие стационарной емкости. В таком случае копать землю не придется.

Суть туалета заключается в том, что продукты жизнедеятельности собираются в специальную емкость, которая периодически пересыпается «пудреном» — сыпучим составом из просеянной земли.

Ее можно заменить сухой торфяной крошкой, а также золой. Эти композиты имеют прекрасную впитывающую способность.

Конечно, заполненную до критичной отметки емкость придется периодически вытряхивать на компостную яму. Это занятие не из приятных.

Биотуалет
Под биотуалетом понимают изолированный туалет промышленного производства.

Для переработки отходов в таком туалете используют биологические культуры или химические компоненты, которыми насыщается торфяная смесь в приемном бочке.

Инструкция по установке подобного туалета приводится в руководстве пользования биотуалетом.

Дачный пудр-клозет
В случае, когда ваш участок расположен в районе с высоким залеганием грунтовых вод, выгребную яму обустроить не получится – это запрещено нормами санитарии. Выйти из этой ситуации помогут чертежи, при помощи которых своими руками можно построить экологичный дачный туалет – пудр-клозет.
Его конструкцией предусмотрена емкость для сбора нечистот, которую после каждого посещения «припудривают» слоем торфа или опилок. После наполнения канализационной емкости ее содержимое сваливают в компостную кучу, а затем используют в качестве удобрения.
Несмотря на то, что пудр-клозет можно установить даже в дачном домике, конструкция довольно трудоемка в обслуживании, поэтому используется лишь как временное решение проблемы.
ДЕЛАЕМ ВЫГРЕБНУЮ ЯМУ
Размер ямы имеет важное значение при строительстве дачного туалета. Чем больше её объём, тем дольше она будет заполняться. Планируете, что яма будет выгребной, предусмотрите лючок для откачки отходов
Если недалеко находится колодец или установлена насосная станция водоснабжения, стенки и дно выгребной ямы необходимо герметизировать
Планируете, что яма будет выгребной, предусмотрите лючок для откачки отходов. Если недалеко находится колодец или установлена насосная станция водоснабжения, стенки и дно выгребной ямы необходимо герметизировать.
Первым делом нужно очистить площадку от мусора, кустов, деревьев. Мы вырыли выгребную яму шириной 1 м , длиной 1,2 м, глубиной 2 м.
Чтобы земля из ямы не загромождала строительную территорию, её плодородную часть на садовой тележке отвезли на огород, глину — в ближайшую канаву.
Теперь нужно укрепить стенки ямы. Для этого взяли плоские листы шифера, шириной 1 на 2 м, болгаркой нарезали их по размеру стенок и опустили вниз. Чтобы листы не падали, мы подготовили несколько небольших уголков из арматуры, пробили дырки в шифере и забили уголки в стену ямы, закрепив тем самым шифер. В щели между стенками ямы и листами шифера положили прутки арматуры, уложили лист рубероида для гидроизоляции, затем залили цементный раствор. Перед этим нужно распереть листы шифера деревянными брусками. На дно ямы положили лист старого железа, чтобы защитить землю от нечистот. Накроем выгребную яму плёнкой от дождя и приступим к установке столбчатого фундамента.

Особенности совмещенной душевой и туалета для дачи
Хозблок для дачи является первой постройкой, поэтому совмещает в себе сразу несколько подсобных помещений. Сооружают некоторое количество отсеков для проживания, хранения инвентаря, гаража, иногда совмещая с зоной отдыха.
Перед началом строительства выясняют, какие потребности есть у владельца дачи, и какие функции будет выполнять бытовка:
- душ;
- туалет;
- сарай;
- мастерская;
- хранение садового инвентаря и строительных инструментов;
- дровник;
- гараж;
- жилое помещение.

После выяснения потребностей составляют проект будущей конструкции с планировкой всех необходимых функциональных назначений отсеков.
Чертежи дачных туалетов
Чтобы построить хорошую уборную в саду, нужен подробный чертеж туалета для дачи с размерами. Есть много чертежей под разные виды нужников, так что не приходится ничего придумывать самостоятельно. Схема дачного туалета с указанными размерами сильно упрощает строительство и экономит много времени.
Скворечник
Чертеж туалета “Скворечник”
Туалет-скворечник – это самая популярная ввиду своей простоты конструкция. Чертеж туалета элементарен, модель действительно напоминает домик для птиц. Это прямоугольная вертикальная кабинка с односкатной крышей с небольшим уклоном к задней стене.
Чтобы построить скворечник, достаточно установить каркас и обшить его любым стройматериалом, а спереди установить простую дверь. Такой туалет полностью делают из дерева.
Избушка
Чертеж туалета “Избушка”
Избушка, или теремок – это ближайший родственник скворечника. Они очень похожи, но разница в том, что крыша у избушки двускатная. Нужно очень тщательно и точно строить туалет-теремок по размерам на чертеже, иначе есть риск, что крыша готового сооружения будет «перекошена» в одну сторону.
Этот нужник делают немного расширяющимся кверху. Строят его из деревянного бруса, обшивают тоже деревом. Если отделать сооружение «под сруб», то благодаря симпатичной форме оно будет выглядеть как настоящий теремок.
Шалаш
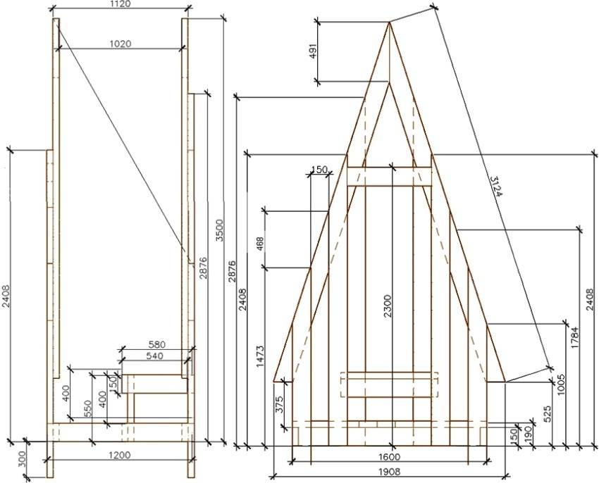
Чертеж туалета “Шалаш”
Отхожее место в виде шалаша очень легко построить. Это двускатная постройка, напоминающая по форме вигвам. Такой чертеж дачного туалета из дерева с размерами позволяет сэкономить стройматериалы и время, требуемое для возведения.
Делают шалаш из дерева, металла или даже шифера. Плюс такой постройки – в том, что она не похожа на туалет, и любопытные прохожие, заглядывая через забор, могут принять ее за хранилище садового инвентаря.
Домик
Чертеж туалета “Домик”
Туалет-домик похож на избушку, но, в отличие от нее, не расширяется кверху. Прямоугольную кабинку венчает простая двускатная крыша, благодаря которой туалет выглядит уютным.
Габариты туалета для дачи примерно одинаковы для всех моделей, и домик – не исключение. Строить его лучше всего из дерева, чтобы он выглядел эстетичнее, но и обшитый металлом домик тоже не сильно портит вид на дачный участок.
Выбор места: нормы размещения на дачном участке
Местоположение уличного туалета играет важную роль. При его определении руководствуются множеством факторов. Если в загородном доме проживают не более двух человек, можно обойтись биотуалетом, люфт-клозетом. Для полноценной семьи, посещающей дачный участок на выходных, проживающей там сезонно, без выгребной ямы не обойтись. При сооружении таких построек следует соблюдать следующие правила:
- СНиП 30-02-97. Пункт 6.8: уборные должны располагаться на удалении не менее 12 м от жилой постройки, погреба. Расстояние от колодца должно превышать 8 м. При этом данные нормы учитываются для объектов, расположенных на соседнем участке.
- СанПиН 42-128-4690-88. В документе приведены требования, предъявляемые к постройке, устройству выгребной ямы. Ее дно располагается выше уровня грунтовых вод, глубина не должна превышать 3 м, стены колодца выкладываются из кирпича, блоков, либо обустраиваются бетонными кольцами. У шахты предусмотрено дно, гидроизоляция, например, в виде слоя штукатурки. Наземная часть строения выполняется из кирпича, дерева, газо-, пеноблока.
- СП 42.13330.2011. В пункте 7.1 оговаривается, что при отсутствии централизованной канализации расстояние от отхожего места до соседского частного дома и источника водоснабжения составляет минимум 12 м и 25 м соответственно.

Временный туалет на дачном участке
Если полноценный туалет на даче планируется построить позже, то временный вариант клозета станет отличным решением. Чаще всего такие модели сооружают во время строительства дома.
Временный туалет на даче можно соорудить из:
- фанеры;
- досок;
- гипсокартона;
- любых материалов, оставшихся после стройки.
Строится такой туалет на даче так же, как и постоянный. Но требования к теплоизоляции и комфортабельности сильно снижены, ведь эта уборная создается на короткое время. Емкость для нечистот – большое ведро или бочка, частично вкопанные в землю. А когда они заполнятся, можно будет построить садовый туалет для дачи своими руками на постоянной основе.
А какой туалет у вас?
Проекты уличных туалетов с чертежами и описанием
Существует множество вариантов дачного туалета на приусадебном участке. Это могут быть как самые простые постройки, так и оригинальные произведения искусств. Чаще всего, владельцы дач останавливаются свой выбор на:
- простых моделях;
- туалете, совмещенным с душем;
- дачном туалете – домике;
- туалете — шалаше.
Каждый отдельный вариант имеет свои особенности строительства и подходит под разные ландшафтные дизайны. Форму постройки владельцы дач выбирают сами, а вот количество необходимого материала, рассчитывается исходя из размеров уличного стандартного туалета.
Самый простой вариант
Самым простым и бюджетным вариантом является традиционная деревенская уборная из древесины. В качестве основного расходного материала здесь можно использовать:
- осб плиты;
- вагонку;
- ДСП;
- доски;
- листовую фанеру.
К основным преимуществам простой модели уличного туалета стоит отнести:
- мобильность. При необходимости постройку легко и просто передвинуть с одного места на другое или разобрать;
- выгодную стоимость. Деревянный туалет самый доступный в ценовом плане;
- экологичность. Дерево не выделяет вредных токсинов. Главное, обработать его антисептиками и огнеупорными составами.
Самой простой моделью садового деревянного туалета среди дачников является скворечник. Он характеризуется односкатной крышей, высотой задней стенки до 2 м, шириной не менее 1 м.
Чтобы постройка прослужила как можно дольше, дерево раз в несколько лет покрывается новым слоем лака или окрашивается.
Дачный туалет домик
Этот вид туалета относится к довольно любопытной и оригинальной конструкции, где можно проявить полный полет фантазии. Если сравнить его с другими моделями (например, шалашом, скворечником, избушкой), он окажется самым теплым и комфортным в эксплуатации. Помимо этого строение является прочным, надежным и долговечным. А тратится на него столько же времени, сил и финансов, сколько и на сооружении менее комфортного и не такого теплого скворечника.
Туалет шалаш
Такое строение отличается эффектным внешним видом. Строительство туалета – шалаша начинается с обустройства выгребной ямы. По углам ямы делаются небольшие углубления для размещения в них бетонных блоков
На данном этапе строительства важно строго соблюсти точную геометрию. Конструкция обязательно должна быть прямоугольной. Размеры дачного туалета шалаша могут быть следующие:
Размеры дачного туалета шалаша могут быть следующие:
- ширина постройки до 2 м;
- высота – 2,4 м;
- глубина – 1,2м.
Туалет с душем
Комбинирование с душем часто используется как дачниками, так и владельцами частных домов. Внешне постройка представляет собой небольшой домик с двумя дверями. С одной стороны в нем находится летний душ, с другой – уборная. Многие считают, что сооружение такого здания не оправдывается финансовыми затратами. Но ведь душ, как и туалет, обязательно должен присутствовать на участке. Следовательно, строить его придется все равно. А сооружая совместный душ с туалетом можно сэкономить финансовые расходы за счет одной смежной стены между постройками.
В заключение стоит отметить, что способов сооружения дачных туалетов существует масса. Все они отличаются по габаритам, типам конструкций, формам, дизайнам, материалам изготовления
Не важно, на каком варианте вы остановили свой выбор, главное, чтобы садовый туалет гармонично вписался в окружающую обстановку и если не стал ее ярким акцентом, то хотя бы не испортил внешний вид двора
При строительстве не стоит бояться экспериментировать. Проявляя свой полет фантазии, распечатывая интересный чертеж дачного туалета с размерами из дерева с размерами, можно создать действительно эксклюзивную постройку на участке, вызывающую восторг и восхищение не только среди ваших родных, но и среди соседей.
Рекомендации по объему и конструкции выгребной ямы
- Если площадь придомового участка не позволяет отнести туалет подальше от дома, то отхожее место оборудуют у глухой стены здания, в удалении от террас и окон. Для того чтобы откачать нечистоты, к задней стенке сооружения должен быть свободный подъезд (подход).
- Каким объемом делать выгребную яму? Считается, что в среднем один человек «вырабатывает» до 600 литров мочи и фекалий в год. Семья из 4-х человек – 2400 л или 2,4 м3. Ямы объемом 4-5 кубических метров за глаза хватит для обеспечения нужд небольшой семьи.
- Дно и стены выгреба в обязательном порядке бетонируют (стенки могут выкладываться из кирпича, бута, бревен), а затем тщательно штукатурятся изнутри. Низ ямы делают под уклоном (минимум 15о) для того чтобы моча и фекалии стекали в сторону люка, как это показано на рисунке люфт-клозета с кабинкой типа «Скворечник».
Какие бывают дачные туалеты без выгребной ямы
Большой ассортимент дачных туалетов затрудняет выбор владельцев. Если вы ещё не знаете, какой вид купить для дачи, предлагаем вместе с нами выяснить все плюсы и минусы каждой модели.
Что это такое: дачный торфяной или сухой туалет
Дачный сухой туалет – это название уличного отхожего места, в котором размещён стульчак с крышкой. Отходы жизнедеятельности собираются в легко извлекаемую ёмкость. Рядом, в удобном доступе, обычно ставят контейнер с торфом для присыпки нечистот.
Из плюсов дачного торфяного биотуалета можно выделить следующее:
- полное уничтожение запаха;
- предотвращение размножения насекомых;
- многие впоследствии используют отходы, перемешанные с сухим материалом, как удобрение;
- это один из наиболее бюджетных вариантов;
- такую модель можно установить в любом месте участка, поскольку он никак не влияет на подземные воды.
Контейнер нужно очищать не реже двух-трёх раз в неделю. Содержимое можно просто вылить в яму с компостом или бак, в котором содержимое следует ещё раз пересыпать смесью торфа и земли.
Сухой материал в целях экономии и для увеличения объёма можно перемешивать с землейФОТО: commons.m.wikimedia.org
Для удобной выемки ёмкости, в задней стенке туалета обычно делают небольшую дверцу ФОТО: sad24.ru
Какие ещё бывают туалеты для дачи без запаха и откачки
Ещё один неплохой вариант для дачи – химический клозет, состоящий из двух модулей. В верхнем установлено сиденье, ёмкость с водой и устройство для смыва. Нижний оборудован абсолютно герметичным контейнером для отходов, поэтому неприятные запахи полностью исключены.
Когда резервуар будет полностью заполнен, его обязательно нужно очистить. Для этого придётся вылить отходы в специально отведённое место и заново наполнить водой, добавив новую порцию реагентов.
Отметим следующие преимущества биотуалетов:
- компактность;
- простота установки;
- гигиеничность;
- высокая износостойкость.
По отзывам потребителей, существенный недостаток у биотуалета для дачи только один: постоянные траты на реагенты. Стоимость модели напрямую зависит от объёма резервуаров и наличия дополнительных опций, например, индикатора заполнения контейнера, электропомпы для смыва жидкости.
Современные биотуалеты выглядят довольно симпатично ФОТО: biotualeto.ru
Для туалетов лучше выбирать биологические экологически чистые реагенты ФОТО: youla.ru
Не многие дачники знают о существовании электрических туалетов для приусадебного участка. Современные модели состоят из двух независимых контейнеров для приёма твёрдых и жидких отходов жизнедеятельности. Жидкие выводятся в землю или испаряются. Также возможно подключение к канализации. Твёрдые высушиваются до порошкообразного состояния компрессором.
Выделим несколько основных преимуществ электрических моделей:
- главным плюсом моделей является их редкая очистка, опорожнять резервуар нужно не чаще, чем два раза в год;
- ёмкости не требуют применения химических или биологических реагентов.
Из негативных особенностей следует выделить высокую стоимость и необходимость подводки электричества для работы резервуаров. Кроме того, потребуется монтировать вентиляцию для каждого контейнера.
Устройство электрического туалета для дачи ФОТО: greendom74.ru
Остатки твёрдых отходов после высушивания компрессором ФОТО: lewisgray.com
Статья по теме:
Нормы установки туалета на участке
Чтобы правильно установить туалет на собственном дачном участке, нужно соблюдать законодательные нормы и ограничения. Большинство из них распространяются только на отхожие места, оборудованные выгребной ямой, ведь сток нечистот в почву – это проблема для экологии.
Стандартные размеры уличного туалета на участке:
- основание – 100х100 см (при использовании утеплителя или с толстыми стенами желательно увеличивать хотя бы до 115х115 см, чтобы внутри не было тесно);
- высота от пола до потолка – 210 см;
- от стульчака до потолка – 180 см;
- от пола до сидения – 50 см.
Размеры туалета для дачи отличаются в зависимости от выбранного чертежа. Также их можно изменять вручную, подстраивая под свои нужды.
Далее – о законодательных ограничениях на установку туалета с выгребной ямой:
- расстояние до любого источника воды – не менее 25 м (не стоит забывать и об источниках на участках соседей);
- до погреба или подвального помещения – 12 м;
- до строений, которыми пользуются люди (баня, душ, летняя кухня и т.д.) – 8 м;
- до загонов с животными – 4 м;
- до ближайшего дерева – 4 м;
- до ближайшего куста – 1 м;
- к участку должен быть организован удобный автомобильный подъезд, которым сможет воспользоваться ассенизатор.
Следующие нормы распространяются на туалеты и с выгребной ямой, и без нее:
двери не могут открываться по направлению к соседнему участку, даже если там стоит забор;
важно учитывать преобладающее (самое частое) направление ветра, чтобы неприятные запахи не неслись в сторону дома или соседних участков;
нужно учитывать расстояние к соседским постройкам.




































